Aktuelles aus der Gemeinde

Adventsfensteraktion 2020

Im Advent durften wie wieder schön dekorierte Adventsfenster bewundern. Ein herzliches Dankeschön allen 24 Gestaltern, di sich zur Teilnahme bereit erklärt haben und somit die Umsetzung ermöglicht haben. Anbei findet ihr nochmal alle Fenster...

In einer harten Zeit ein Lächeln verbreiten

Am Sonntag, den 20. Dezember fuhr der Nikolaus zusammen mit Knecht Ruprecht mit einem geschmückten Traktor durch das Dorf und verteilten kleine Präsente an die Kinder. Viele standen an der Straße oder am Fenster....

St. Martin in Coronazeiten

Nachdem wegen der Pandemie der Martinszug, das Martinsfeuer und  die Verlosung nicht stattfinden durften, war es 2 privaten Initiativen zu verdanken, dass unter  Einhaltung der Coronavorschriften, dennoch erlebnisreiche Tage für die Kinder geboten werden...

First Responder für Oberstadtfeld

Im ländlichen Raum erhalten die „First Responder“ als qualifizierte Ersthelfer eine immer größere Bedeutung. Als Helfer vor Ort können die First Responder in Notfallsituationen wirksame Erste Hilfe bis zum Eintreffen der weiteren Rettungskräfte leisten....

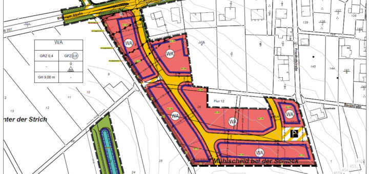
Bebauungsplan „Mühlscheid bei der Schlack“ – Stand Januar 2022

In-Kraft-Treten des Bebauungsplanes „Mühlscheid bei der Schlack“ Der Ortsgemeinderat der Ortsgemeinde Oberstadtfeld hat in öffentlicher Sitzung am 14. Oktober 2021 den Bebauungsplan „Mühlscheid bei der Schlack“ als Satzung beschlossen. Der räumliche Geltungsbereich des Satzungsgebietes...

Elektronische Dorfgruppe

Liebe Oberstadtfelderinnen und Oberstadtfelder, in dieser Zeit des Ausnahmezustandes im ganzen Land und damit auch in unserem Dorf, müssen wir neue Wege des Zusammenlebens suchen und die Dorfgemeinschaft stärken. Gerade jetzt, wo Abstand und...